Top modernisiertes Einfamilienhaus in bevorzugter Wohnlage von Glinde!
Eckdaten
- Art Einfamilienhaus
- Lage 21509 Glinde
- Kaufpreis 618.000,00 €
- Wohnfläche ca. 119 m²
- Grundstück ca. 695 m²
- Zimmer 4
- Kellerfläche ca. 15 m²
- Baujahr 1936
- Heizungsart Zentralheizung
- Stellplatztyp Garage Aussenstellplatz
- Stellplatzanzahl 3
- Garagenanzahl 1
- Vermietet nein
- Bezugstermin Nach Vereinbarung
- Ausstattung des Bades Badewanne Dusche Fenster
- Zustand Saniert
- Immobilien-ID 5495
- Provision 3%
Immobilie
Wichtiger Hinweis zum Energieausweis: Der Energieausweis ist nicht repräsentativ, da unter anderem das Dach, die Heizung sowie die Fenster im Jahr 2022 erneuert wurden. Die Verbrauchswerte umfassen allerdings teilweise die Werte vor der Modernisierung. Wenn man die Verbrauchswerte aus 2023/2024 zugrunde legt, würde man bei einem Endenergieverbrauch von etwa 99,09 kWh/(m2 x a) liegen und einer Effizienzklasse C.
In diesem Zuhause treffen Komfort und Moderne aufeinander. Das mit viel Liebe zum Detail modernisierte Einfamilienhaus bietet ein hervorragendes Wohnambiente, ergänzt durch einen großzügigen und liebevoll angelegten Garten. Von 2021 bis 2022 wurde die Immobilie umfassend modernisiert; dabei wurden das Dach, die Elektrik samt Leitungen, die Fenster, die Heizungsanlage sowie die gesamte Innenausstattung erneuert. Die erstklassige Ausstattung, der hervorragende Zustand der Immobilie, der einladende Wohn- und Essbereich, die sonnige überdachte Terrasse, der charmante Baustil, der liebevoll gestaltete Südwest-Garten sowie die wunderschöne Lage inmitten von Ruhe und Natur machen dieses Zuhause zu einem einzigartigen Rückzugsort.
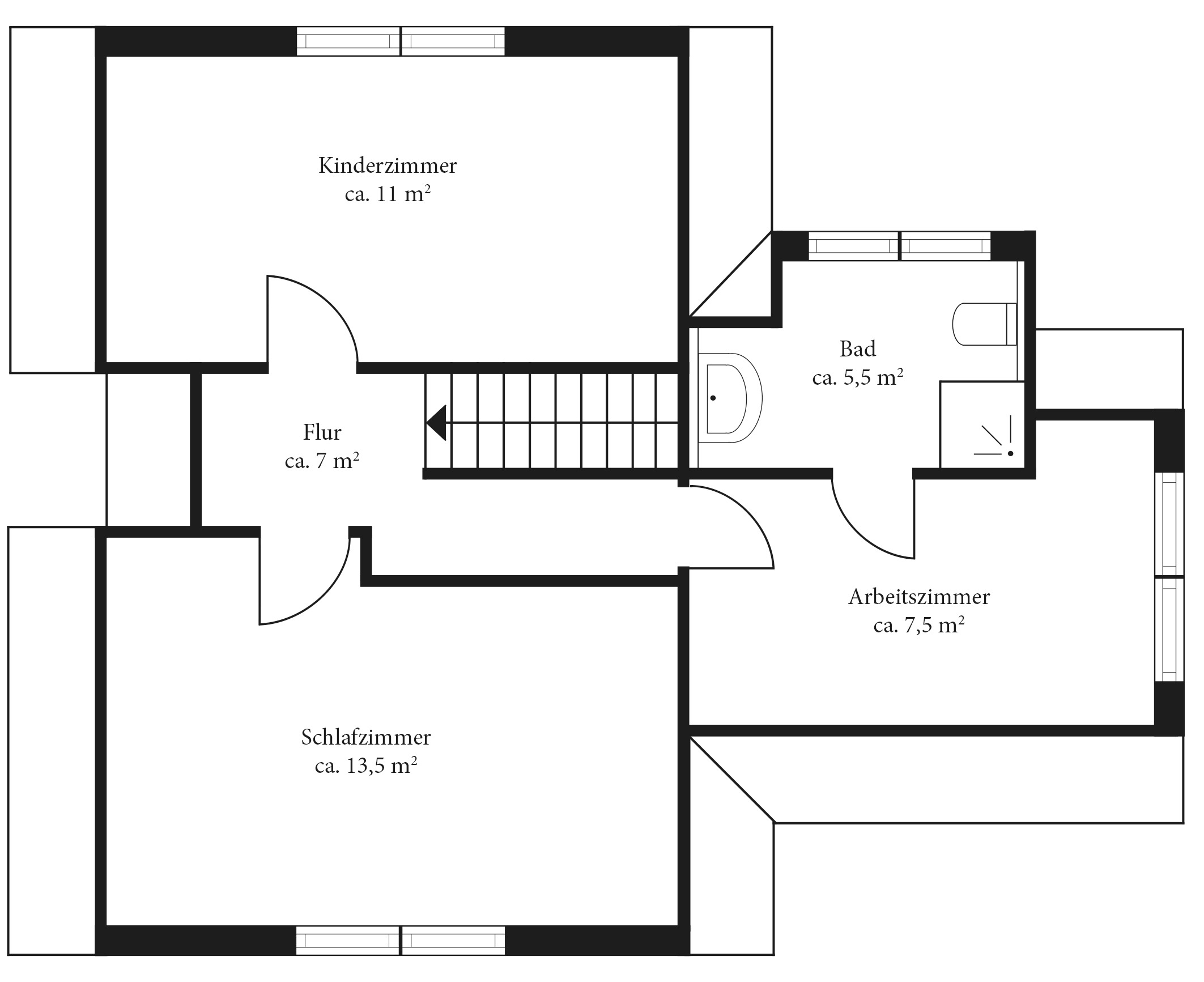
Das Haus bietet eine Wohnfläche von ca. 119 m², die sich auf einen hellen Wohn-/ Essbereich, eine moderne Küche, eine einladende Diele mit Garderobe, zwei Schlafzimmer, ein Arbeitszimmer, zwei Bäder, ein Gäste-WC und einen Flur verteilt. Im Teilkeller befinden sich der Hauswirtschaftsraum sowie die Heizungsanlage. Die Schlafzimmer im Dachgeschoss sind bis zum First ausgebaut und bieten dadurch besonders hohe Decken. Das liebevoll angelegte Grundstück hat eine Größe von etwa 695 m². Die überdachte Terrasse ist mit zwei Markisen und einem Außenkamin ausgestattet. Im Jahr 2020 wurden die Terrassenfliesen erneuert, und es wurden eine Außenbar sowie ein Holzunterstand errichtet. Für Ihre Fahrzeuge stehen eine Garage und Außenstellplätze zur Verfügung.
Lage
Die charmante Stadt Glinde gehört zur Metropolregion Hamburg. Die Stadt besticht durch ein vielfältiges Kulturangebot, die unmittelbare Nähe zur Natur, eine gute Autobahnanbindung sowie eine ausgezeichnete Infrastruktur. In wenigen Autominuten erreichen Sie den Sachsenwald und die Stormarnsche Schweiz, während Sie dank der hervorragenden Verkehrsanbindung über die A1, A24 oder B5 schnell im Hamburger Stadtzentrum sind.
Das Haus befindet sich in einer ruhigen Anliegerstraße. Besonders hervorzuheben ist die Kombination aus Ruhe und Nähe zu wichtigen Anlaufpunkten. Der Glinder Markt, schöne Parkanlagen wie der Mühlenteich sowie Schulen und Kindertagesstätten sind zu Fuß oder bequem mit dem Fahrrad in Kürze erreichbar. Der Glinder Markt bietet eine Vielzahl von Einkaufsmöglichkeiten, Apotheken, Cafés, Restaurants und medizinischen Versorgungsdiensten. Für Natur- und Erholungsliebhaber bieten der malerische Mühlenteich mit seinem Park, die Glinder Au oder das Golf Gut Glinde entspannende Rückzugsorte im Alltag. Wer nach Wellness auf höchstem Niveau sucht, findet im nahegelegenen Vabali Spa Hamburg eine wahre Oase der Ruhe. Die Anbindung an das regionale und überregionale Verkehrsnetz ist hervorragend; über die nahegelegene Autobahn A24 erreichen Sie das Hamburger Stadtzentrum in etwa 20 bis 25 Minuten. Mehrere Buslinien verbinden das Wohngebiet mit umliegenden Gemeinden sowie dem öffentlichen Nahverkehr Hamburgs. Insgesamt handelt es sich um eine attraktive Wohnlage mit hoher Lebensqualität, die sowohl von Familien als auch von Berufspendlern sehr geschätzt wird.
Ausstattung
Das Einfamilienhaus wurde 1936 in massiver Bauweise auf einem ca. 695 m² großen Grundstück errichtet. Im Jahr 1976 wurde es durch einen Anbau erweitert und in den Jahren 2021 sowie 2022 wurde es umfassend modernisiert. Die Immobilie überzeugt durch ihren sehr guten Zustand, die hellen Räume sowie die moderne und hochwertige Ausstattung.
Die Modernisierung umfasste insbesondere:
– Erneuerung des Daches
– Erneuerung sämtlicher Fenster (überwiegend 3-fach verglast, mit innenliegenden Sprossen)
– Neue Heizungsanlage (Gaszentralheizung mit Warmwasseraufbereiter)
– Neues Fundament im Erdgeschoss und Erneuerung der Geschossdecke
– Neue Elektrikleitungen, Sicherungskasten sowie Steckdosen und Lichtschalter
– Aufwändige Malerarbeiten – alle Innenwände sind mit Feinputz versehen
– Neue Innentüren und Zargen
– Neues Gäste-WC und Duschbad
– Neue Einbauküche
– Erneuerung sämtlicher Fußbodenbeläge
Die Böden im Wohn-/Essbereich, in den Zimmern sowie im Flur des Dachgeschosses sind mit Designplanken in Holzoptik versehen, während die anderen Bereiche mit hochwertigen Fliesen ausgestattet sind. Der einladende Wohnbereich wurde durch einen Durchbruch mit dem Essbereich verbunden, und beide Räume sind vom Flur aus über eine Schiebetür zugänglich. Die geräumige Einbauküche verfügt über weiße Fronten, Ober- und Unterschränke mit Soft-Close sowie Markeneinbaugeräte (Miele, Neff und Bosch). Die Miele Dunstabzugshaube ist mit einem Außenabzug ausgestattet. Besonders hervorzuheben sind die ausziehbaren Eckunterschränke und die Wasserfilteranlage. Die großzügige Terrasse ist von der Küche aus zugänglich. Die Küchentür ist auch von außen abschließbar und verfügt über einen Außenrollladen. Die Terrasse ist mit einem Glasdach sowie zwei Markisen versehen und hat einen Außenkamin.
Die beiden Schlafzimmer im Dachgeschoss haben Decken, die bis zum First geöffnet sind, was den Räumen eine besondere Großzügigkeit verleiht. Die Außenrollläden in den Schlafzimmern sind elektrisch und über eine App steuerbar. Im Haus befinden sich zwei Bäder sowie ein Gäste-WC. Das Duschbad und das Gäste-WC sind modern und hochwertig ausgestattet.
Im ca. 17 m²großen Teilkeller befinden sich ein Hauswirtschaftsraum mit Waschmaschinenanschluss sowie die Heizungsanlage. Ein weiteres Highlight ist der im Jahr 2024 erneuerte Zaun, der pulverbeschichtet und geschmiedet ist und mit einem elektrischen Einfahrtstor ausgestattet wurde. Das großzügige Grundstück wurde liebevoll gestaltet. Eine weitere Außenterrasse mit Außenbar und Holzunterstand wurde 2020 erbaut. Für Ihre Autos stehen eine Garage sowie Außenstellplätze zur Verfügung.
Sonstiges
Die Courtage in Höhe von 3 % inkl. der gesetzlichen Mehrwertsteuer auf den Kaufpreis trägt der Käufer und ist mit dem Zustandekommen des Kaufvertrages (notarieller Vertragsabschluss) verdient und fällig. Die Faust + Partner Immobilien oHG hat mit dem Verkäufer eine schriftliche Provisionsvereinbarung in gleicher Höhe geschlossen. Die Firma Faust + Partner Immobilien oHG erhält einen unmittelbaren Zahlungsanspruch gegenüber dem Käufer (Vertrag zugunsten Dritter, § 328 BGB). Alle Angaben sind ohne Gewähr und basieren ausschließlich auf Informationen, die uns von unserem Auftraggeber zur Verfügung gestellt wurden. Wir übernehmen keine Gewähr für die Vollständigkeit, Richtigkeit und Aktualität dieser Angaben. Die Grunderwerbsteuer, Notar- und Grundbuchkosten sind vom Käufer zu tragen. Im Übrigen gelten unsere Allgemeinen Geschäftsbedingungen. Irrtum und Zwischenverkauf vorbehalten.
Energieausweisangaben
- Enerigeausweistyp Verbrauchsausweis
- Energiekennwert 137 KWh(m²*a)
- Energieeffizienzklasse E
- Energie mit Warmwasser ja
- Energieausweis erstellt am 26.08.2025
- Energieausweis gültig bis 25.08.2035
- Heizungsart Zentralheizung
- Befeuerung / Energieträger Gas
Herzlichen Dank für Ihre Anfrage.
Wir werden diese so schnell wie möglich bearbeiten.
























